House on Harbourview Park

House on Harbourview Park is an architectural response to an utterly unique site and design brief. The brief was to design a contemporary dwelling on a vacant lot that was owned by, and directly adjacent to an existing Victorian Manner house. The vacant lot was on the edge dense parkland and backed on to an existing sandstone outcrop with a steep drop in levels from the existing house. Access to the new dwelling off the existing street was not possible and could only be granted via an easement through the existing dwelling.

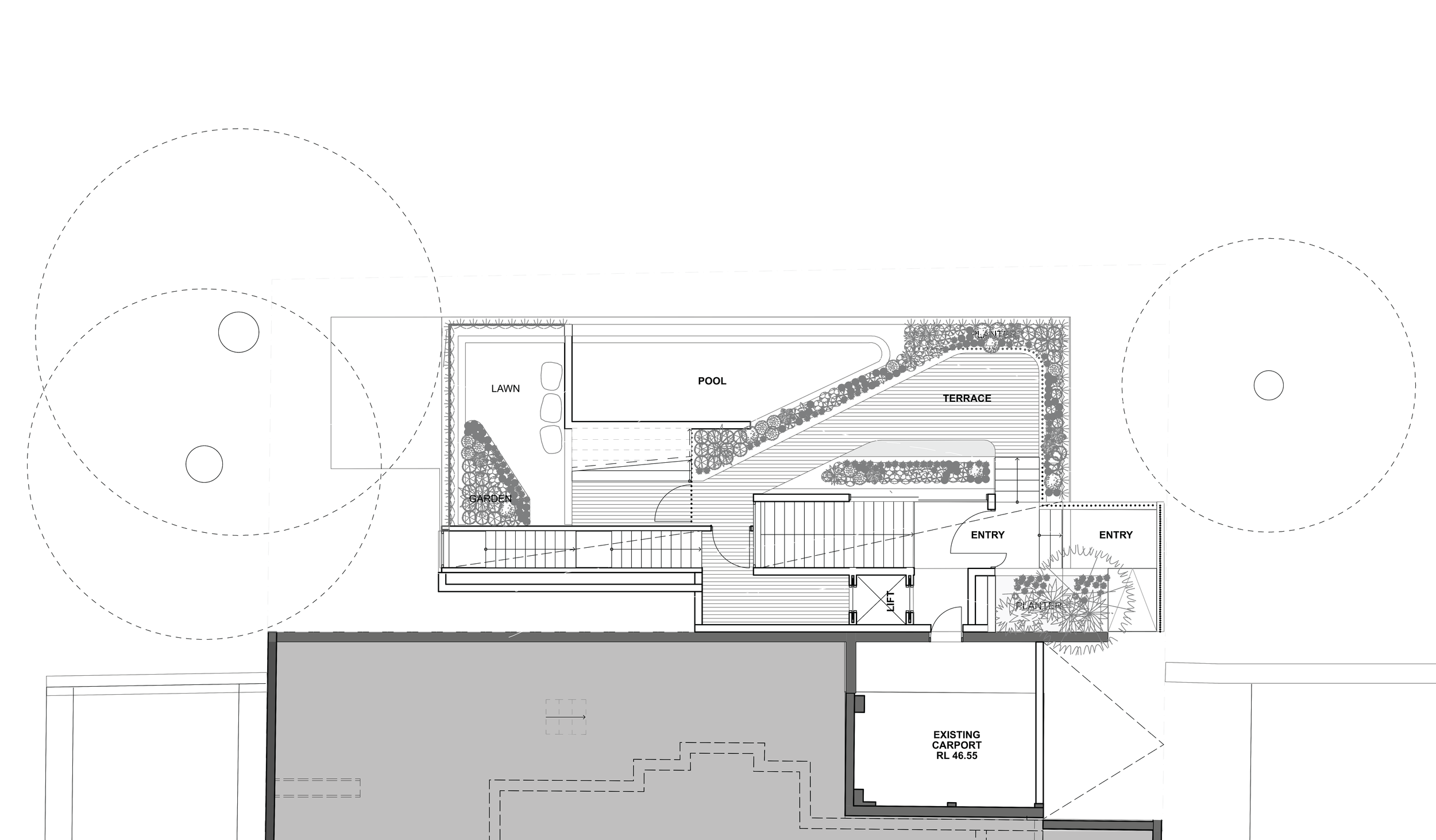
The design challenge of the new dwelling was not to disturb the amenity and views of the existing house. A green roof was positioned horizontally at the terrace level of the existing house, visually integrating itself into the parkland beyond. This provided a roof platform in which the new dwelling could expand downwards into the existing rock outcrop.

The design concept was a series of concrete platforms with green edges that provided the volumes for the spaces in the house. Below the green roof was the entry to the house and a terrace with swimming pool. A grand stairway then leads down into the platform below which contains the living, kitchen and dining spaces. A stair spine on the south of the house connects further downwards to the sleeping spaces which are on the lower level, nestled on the existing rock platform.

The simplicity of the material pallete of concrete, steel and glass, edged with overflowing greenery is a purposeful contemporary contrast the victorian decoration and detail of the existing manner house.

Status: Development Application approved.

Area: 420m2

Previous
Previous

Thirroul Addition

Next
Next

Wallaroy Residence