Thirroul Addition

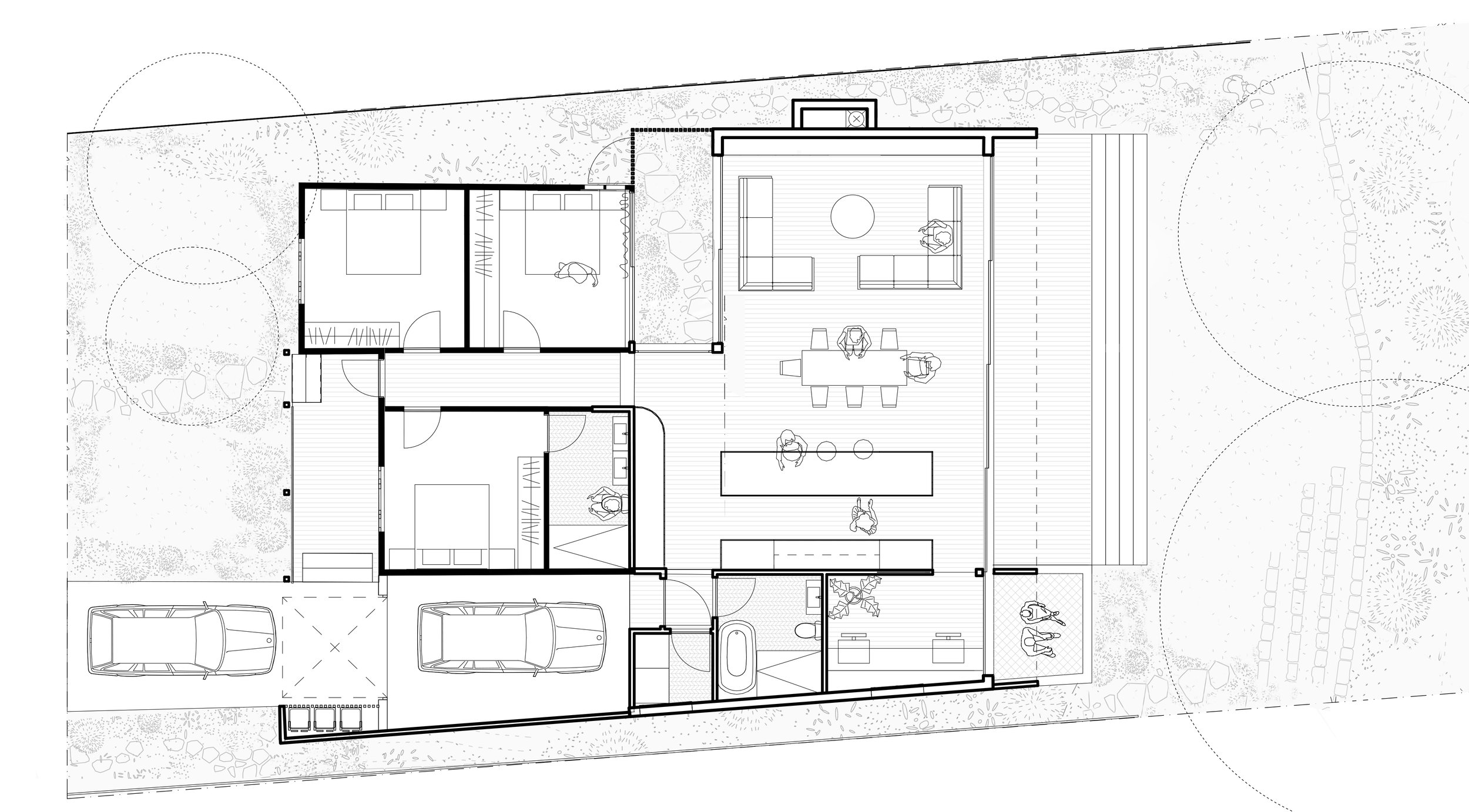
The Thirroul addition is a proposed renovation to an existing weatherboard cottage in Thirroul, NSW. The brief was to demolish the existing dilapidated rear of the cottage and outhouse buildings and construct a new and cohesive rear addition that included a new living and dining area, kitchen, study, bathroom, laundry and garage that connected into the house. The existing cottage which included three bedrooms and bathroom was to be remain, with minor works to be carried out on the storage, wall and floor linings.

The proposal was a 100SQM timber clad box that plugged into the existing cottage with a courtyard space in between that maximised light and cross ventilation. The addition included 5 large format sliding timber doors that could sit in a range of positions so that the living and study spaces could open and close off to the garden as desired.

The addition had a skillion roof that sloped up to the north. A large window was designed to sit above the joinery and frame the magnificent view out to the Illawarra escarpment whilst remaining completely private to the neighbouring dwelling.

Status: DA Approved.

Area: 190m2

Next
Next

House on Harbourview Park