The Living Wall

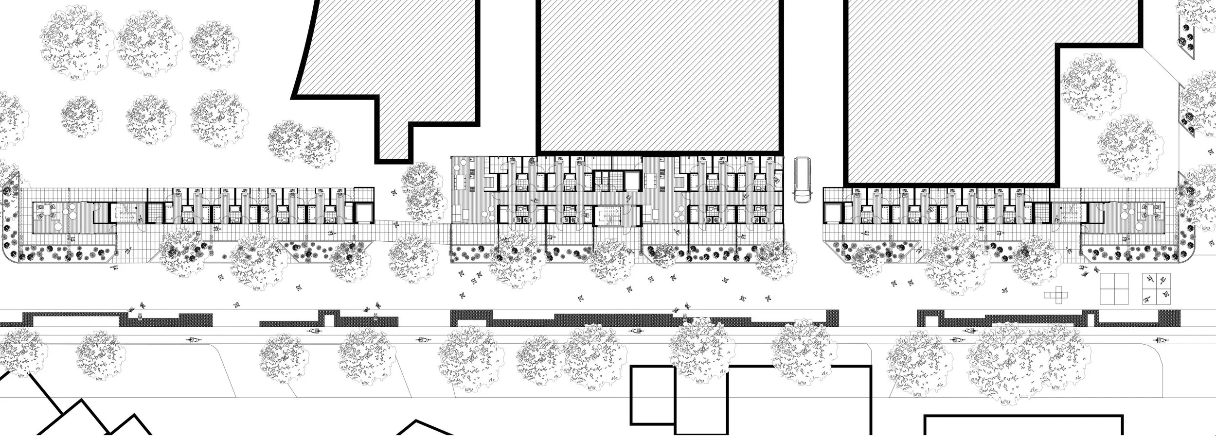
The Living Wall was an entry into the IDA for a new student accomodation building at Sydney University. The design sought to activate the currently inactive interface of the university to the sreetscape by utilising certain ‘dead’ walls within the campus and buidling off these walls with a proposal that creates new engagement to the public realm. A long thin building of three-four storeys in height was proposed along these walls which housed the student dormitories and shared public spaces, and created a facade that was activated with movement, passive surveillance, light and energy.

The activation of the existing streetscape is at the core of the proposal through elevating the experience of the pedestrian. this emphasis transforms the overall scale and monotonous environment into a vibrant and interconnected ground plane.

The proposal works from the ethos that the sharing of recources through densification and integration of the in between, neglected spaces sets the foundation for an environmentally and socially sustainable future with a high quality of life

Collaborators: Mitchel Ovens and Thomas Ramstraand.

Awarded: IDA awards Silver place for New Residential Category.

Previous
Previous

Plywood Pavillion

Next
Next

Botany House